Budynek salonu samochodowego
Warsztat samochodowy PHU Zelmot, Elbląg - Realizacja
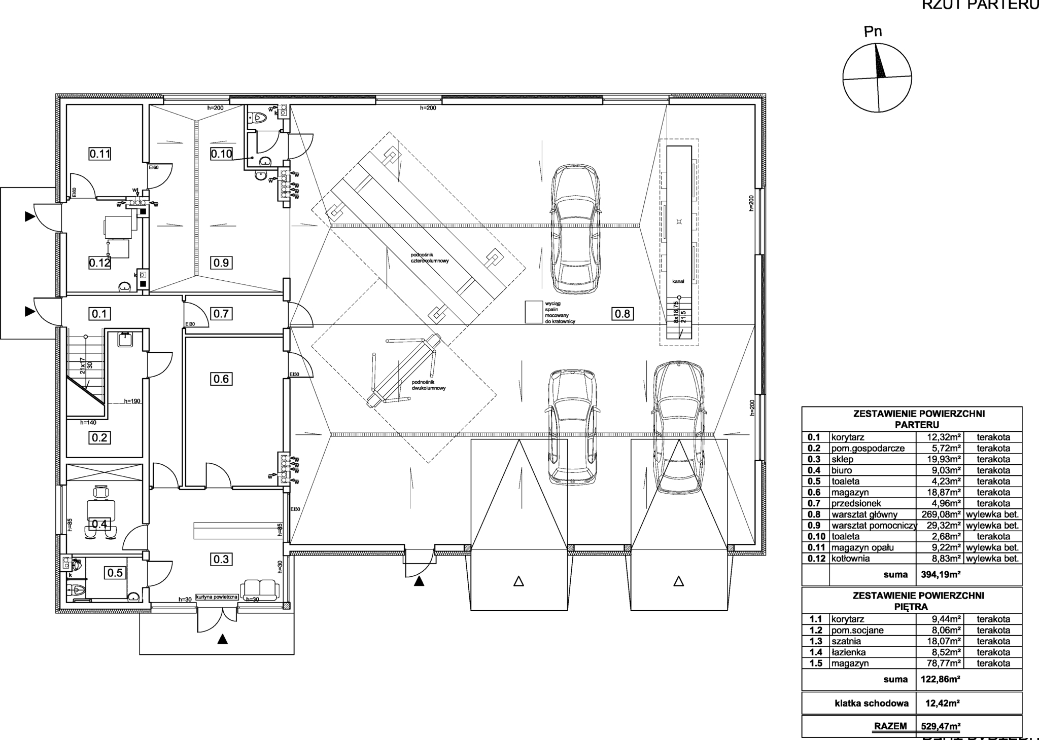
Opis
Projekt budowlany i wykonawczy budynku warsztatowo-usługowego wraz z elementami małej architektury i zagospodarowaniem terenu.
Projekt obejmował branże: architektoniczną, konstrukcyjną, sanitarną i elektryczną.
Zaprojektowano budynek o zwartej bryle, niepodpiwniczony, z dachem plaskim. Budynek jest podzielony funkcjonalnie na dwie części – biurową i warszatatową.
Klient/Inwestor
— P.H.U. ZELMOT
Lata realizacji
— 2014 - 2015
Podstawowe dane liczbowe
- całkowita powierzchnia użytkowa budynku: 529,5 m2
Technologia
- Tradycyjna, murowana.
Podobne projekty
-
Salon Toyota, Kazimierzowo
-
Giełda Elbląska
Przebudowa istniejącej wiaty stalowej BPL1 na budynek handlowo-usługowy
-
PSS "Społem"
Budynek handlowy
-
Zacisze, Elbląg
Budynek objęty opracowaniem jest obiektem 3-kondygnacyjnym z poddaszem nieużytkowym
-
Hala Modrzewina, Elbląg
Hala produkcyjno-magazynowa
-
Sklep Rybny, Olsztyn
Wizualizacja sklepu rybnego zlokalizowanego w Centrum Handlowym w Olsztynie
-
Furnival, Elbląg
Projekt budynku biurowego z halą magazynową oraz kompleksowe zagospodarowanie terenu